帶式濃縮脫水
發布時間:2020-08-05 17:29:30 來源:admin

主要用途
帶式濃縮脫水一體機主要用于城市污水生化處理的剩余污泥或混合污泥的濃縮與脫水,是一種將污泥形成泥餅的高效脫水設備,可適用于給水排水、造紙、鑄造、皮革、紡織、化工、食品等各個行業的污泥脫水。
結構原理
該設備主要由帶式濃縮機與脫水機兩部分組成,污泥經過投加聚凝劑后,在污泥混臺器內進行充分混臺反應后流入重力脫水段,在重力的作用下,污泥中的大量游離水從濾帶的縫隙中流出,進入集水箱中,然后經楔形預壓段導向,使污泥逐漸整平并受到輕度的擠壓而進一步脫水,再進入S形多棍壓榨區段,污泥被夾在上、下層濾布中間經若干個不同直徑的輥筒反復壓榨,這時對污泥造成剪切,促使污泥進一步脫水,形成泥餅,后通過刮刀將泥餅刮落外運,而上、下濾帶進行沖洗后重新使用。
性能特點
1、無級調整電機驅動,可隨時調節運行速度,適應性強。
2、特制沖洗噴嘴及防堵塞裝置,使濾帶沖洗干凈。
3、脫水頭棍采用T型泄水槽,壓榨水迅速出流。
4、重力脫水段呈傾斜設計,污泥的靜水頭加大,可增強脫水效果,使污泥在壓榨前能充分稠化。
5、整機結構緊湊,濾帶自動糾偏,運行噪聲低,電耗省,用藥量少、脫水效果好、運行費用低。
技術參數
機型 | 帶寬(mm) | 功率(kw) | 沖網水 | 壓縮空氣 | 運行重量(kg) | |||
濃縮 | 壓濾 | 耗水量(m3/h) | 壓力(MPa) | 耗氣量 | 壓力 | |||
500 | 500 | 0.55 | 1.1 | 5 | ≥0.5 | 0.3 | 68.6 | 6800 |
1000 | 1000 | 0.55 | 1.5 | 7.5 | ≥0.5 | 0.3 | 68.6 | 11600 |
1500 | 1500 | 0.55 | 2.2 | 12 | ≥0.5 | 0.3 | 68.6 | 12200 |
2000 | 2000 | 0.55 | 2.2 | 15 | ≥0.5 | 0.4 | 68.6 | 13800 |
2500 | 2500 | 0.75 | 3 | 25 | ≥0.5 | 0.4 | 68.6 | 14300 |
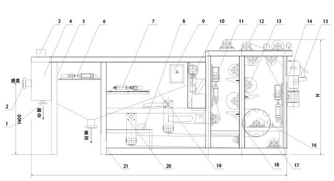
外形及安裝基礎圖

1、放空管 2、進料口 3、聚凝攪拌裝置 4、攪拌罐 5、污泥分配囂 6、濃縮張緊裝置 7、濃縮調偏裝置 8、清洗管接口 9、氣動元件箱 10、濃縮驅動裝置 11、壓榨調偏裝置 12、濾帶 13、壓榨輥 14、壓榨驅動裝置 15、刮泥板 16、預脫水輥 17、下位輥 18、 壓榨接木盤 19、濃縮接水盤 20、壓榨氣動張緊裝置 21、機架
注:DNT型帶式濃縮脫水一體機安裝基礎圈與DT型帶式脫水機安裝基礎圖相同。
(技術參數型號說明介紹及圖片僅供參考,*終以簽約及實物為準)
上一篇:疊螺污泥脫水機
下一篇:板框廂式壓濾機


渝公網安備 50011202502457號